SPM智慧工地现场质量管理系统功能说明
SPM智慧工地现场质量管理系统通过移动互联网技术,可以将一线的真实业务情况及时、真实、直观的反映给相关管理者,有助于快速处理、统筹规划、高效管控。
工具/原料
SPM智慧工地现场质量管理系统
质量风险源管理
1、周计划关联分部分项

2、系统根据施工计划制定质量专项检查任务

3、提前预警重大问题

质量检查
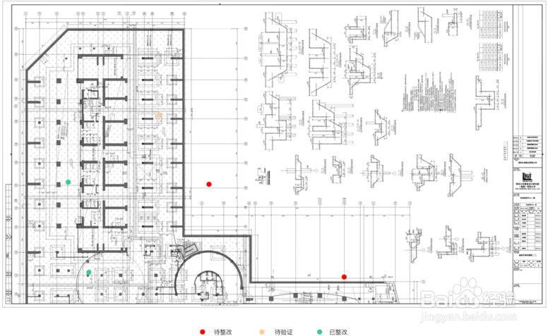
1、根据质量管理平面图划分责任区域检查任务与平面图对应,快捷定位检查目标整改状态不同颜色区分,质量检查任务可视化

2、建立质量标准问题库,快速掌握施工现场易发生的质量问题类型,质量检查过程中快速点选,减少不规范描述。

3、建立检查任务,明确检查目标明确检查人及整改人,责任到人明确关键部位可能发生的质量问题,对问题进行排查

4、现场照片拍摄留痕一次提交多个质量问题明确每个步骤参与人员,责任到人配备质量问题库,问题类型快速点选无网络,本地保存,可离线进行操作

5、质量检查过程清晰,责任明确,专人专事业务闭环,规范整个质量检查流程

质量验收
1、发起验收,任务抄送,短信通知责任人

2、质量验收,多方协作,高效协同照片实时记录

3、质量验收记录分合格,不合格,质量验收记录主要包括验收部位、验收内容、申请人、验收人、验收状态等。

实测实量
1、建立实测部位,将实测点位与所属区域平面图进行关联

2、实测点位可复制

3、配备实测实量标准库,可自定义按照项目实际对相应标准进行编辑

4、进行实测实量时,可选择实测点对应多个实测分项,多个实测内容,实时记录实测数据,现场拍照留痕。

质量资料管理
1、质量技术交底、规范制度资料存档整理

2、在线交流、咨询平台,专家入驻,分享质量经验

BI大数据看板
1、质量检查统计包括整改率、未销项问题、未销项重大问题,质量问题预警、分单位时间筛选与自定义事件筛选检查次数与发现问题数对比

2、分包单位工作量化考核统计

3、质量工作统计未销项质量问题预警 质量问题整改率
