如何用REVIT创建二阶独立基础族
1、新建族文件:打开文件——新建——族——选择‘公制结构结构’族文件,进入图示界面



2、设置族类别和族参数:打开‘族类别和族参数’选项卡——选择‘结构基础’——设置‘用于模型行为的材质’——选择‘混凝土’。



3、绘制参照平面:打开参照平面 绘制菜单——绘制参照线(可适当选用镜像命令)——绘制好的界面如图所示。




4、注释参照平面:打开注释选项卡——选择对齐命令——进行参照平面注释,结果如图所示。双击选中注释——选择标签尺寸 设置参数—斑从腧笮—命名——确定,如图示。相同部分,可单击注释尺寸后直接选择上个步骤命名,如图示。其余以相同步骤,完成相应参数设置,标示结果如图示。





5、创建一阶:打开创建选项卡——选择拉伸命令——选择矩形工具——绘制底层平面——点击🔒图标,四边均锁住,如图示——设置拉伸深度(终点)——勾选“✔”,切换至前立面视图,结果如图示。





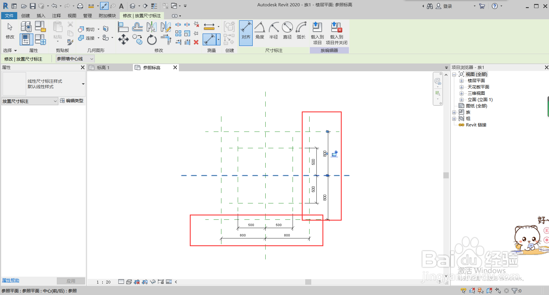
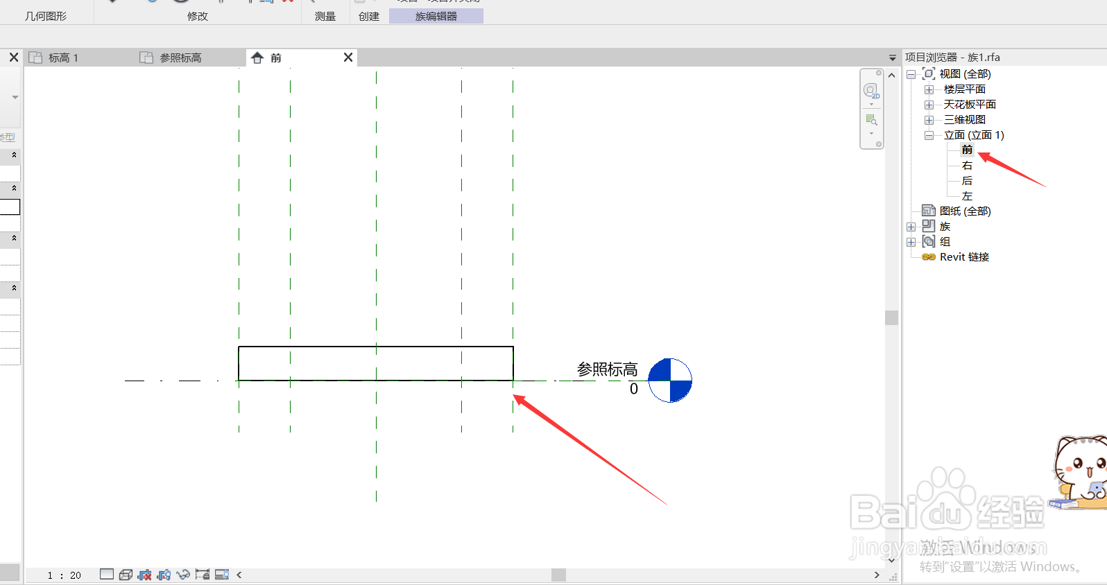
6、创建二阶:切换至参照标高界面后,以同“一阶”相同方法创建第二阶基础,结果如图所示。切换至前立面视图,结果如图示。


7、注释高度方向:注释选项卡——对齐命令——注释高度尺寸——选择注释——设置参数H1;H2如上述同样方法。结果如图示。



8、导出族文件:切换至三维视图,二阶独立基础如图所示;点击‘族亿姣灵秀类型’可设置尺寸标注数值,完成族文件创建。导出:文件——另存为——族(保存当前族文件)。记住保存位置,下次可以反复使用。

