CAD怎么设计一套橱柜(第九课)
1、打开我们上节课所学的教学文件

2、把烟机右侧也偏移一个29mm的见光板出来 如图所示

3、得到如下图所示的方案

4、我们把高柜这一侧也偏移出来一个350mm 把吊柜和高柜连接起来

5、得到下图所示的方案

6、我们测量一下烟机右侧柜子的尺寸为623mm

7、我们偏移出来43mm作为转角封板

8、这样还剩余580mm作为单开门

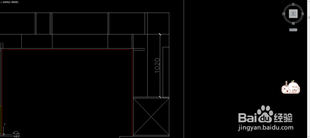
9、我们再输入DLI测量一下高柜这面还剩余多少尺寸

10、我们得到剩余的1020mm

1、打开我们上节课所学的教学文件

2、把烟机右侧也偏移一个29mm的见光板出来 如图所示

3、得到如下图所示的方案

4、我们把高柜这一侧也偏移出来一个350mm 把吊柜和高柜连接起来

5、得到下图所示的方案

6、我们测量一下烟机右侧柜子的尺寸为623mm

7、我们偏移出来43mm作为转角封板

8、这样还剩余580mm作为单开门

9、我们再输入DLI测量一下高柜这面还剩余多少尺寸

10、我们得到剩余的1020mm
