融合经验网
首页
美食营养
游戏数码
知识问答
生活家居
返回
融合经验网
首页
美食营养
游戏数码
手工爱好
生活家居
健康养生
运动户外
职场理财
情感交际
母婴教育
时尚美容
知识问答
搜索
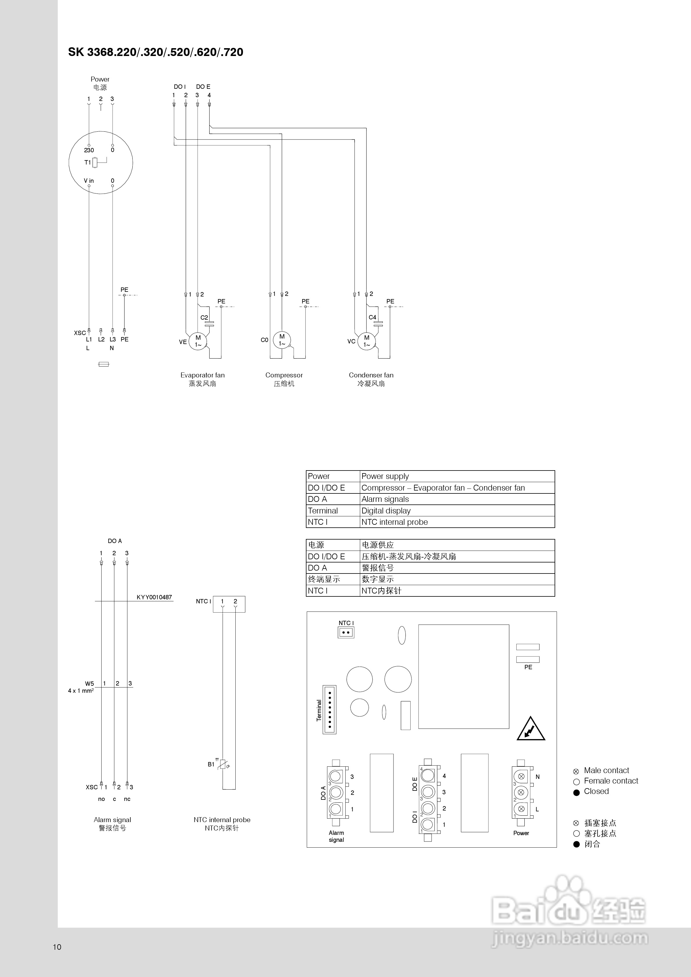
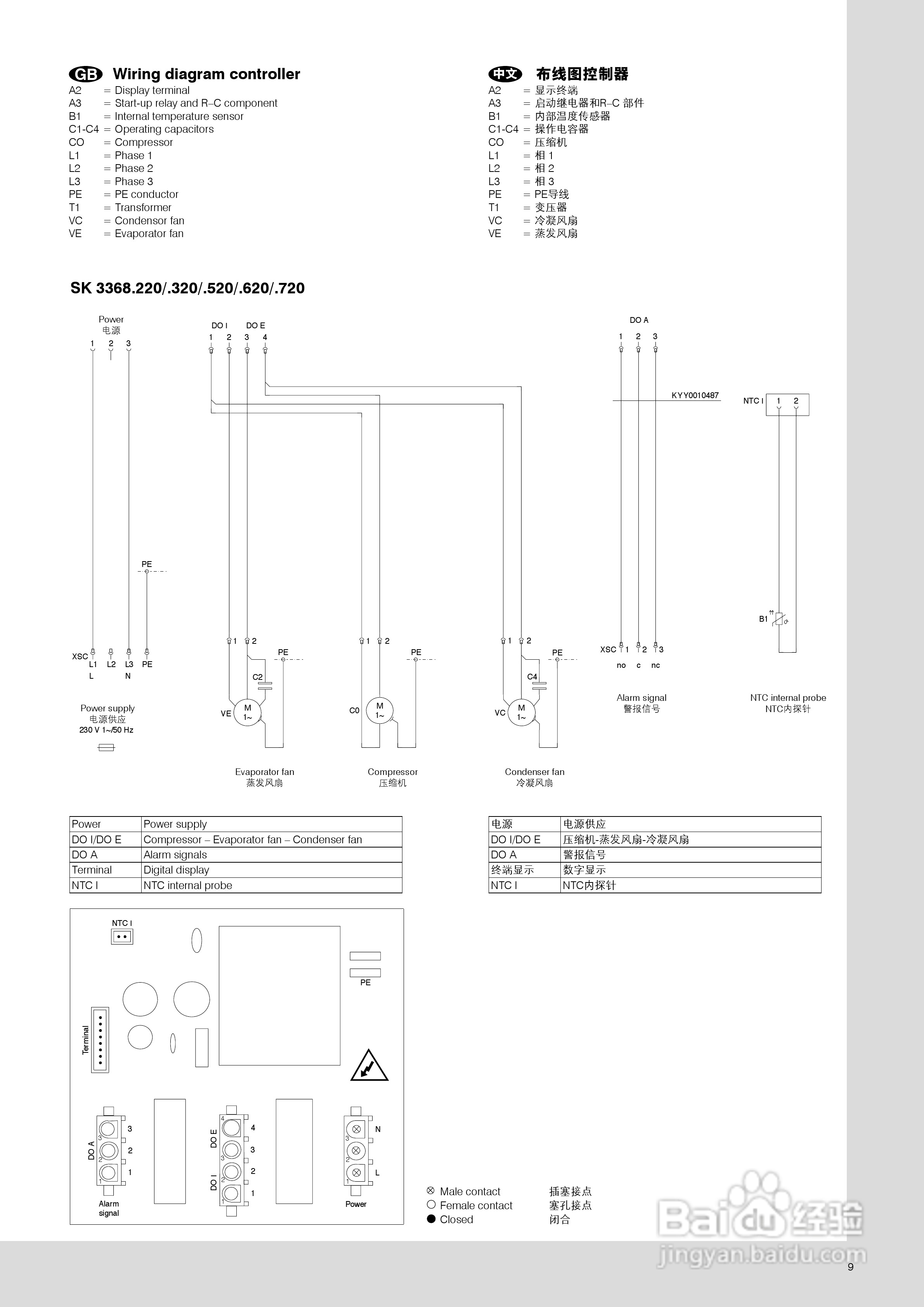
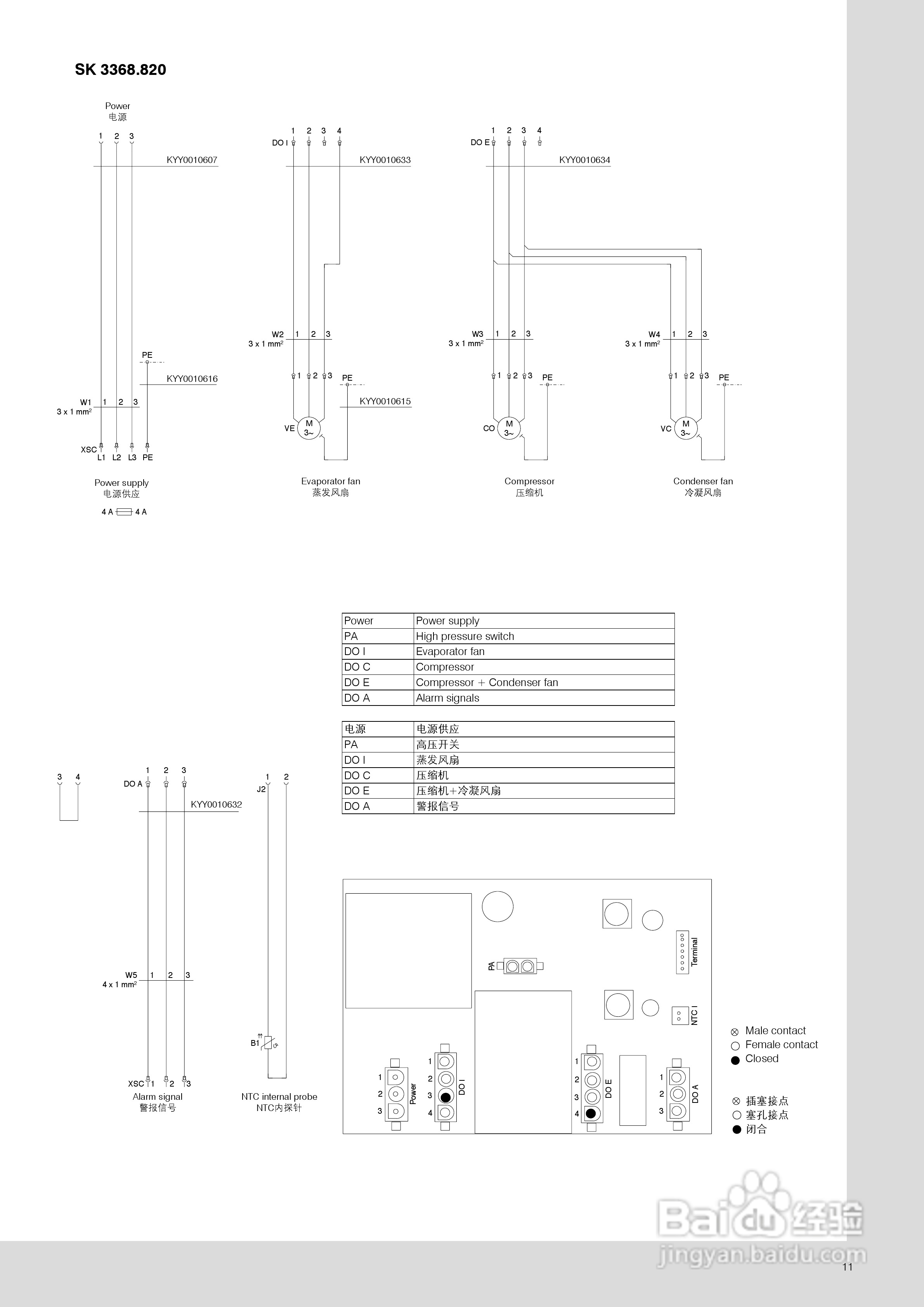
威图SK 3368.720型冷却机使用说明书说明书
2024-10-12 17:36:03
/>
相关推荐
现货白银怎么开户
混凝土裂缝修复
贵金属喊单软件系统
怎样关掉QQ宠物?
微信代理怎么做
猜你喜欢
水晶的作用
天行健君子以自强不息的意思
cbd是什么意思
什么是抄送
潺潺什么意思
which是什么意思
delicious是什么意思
666是什么意思
视死如归的意思
什么羊奶粉好
猜你喜欢
蹒跚是什么意思
spring是什么意思
什么叫御姐
风投是什么意思
dead是什么意思
有什么歌好听
那拉提是什么意思
棒槌是什么意思
酵母菌属于什么生物
什么风凛冽