融合经验网
首页
美食营养
生活百科
知识问答
生活知识
返回
融合经验网
首页
美食营养
游戏数码
手工爱好
生活知识
生活百科
健康养生
运动户外
职场理财
情感交际
母婴教育
时尚美容
知识问答
更多知识
搜索
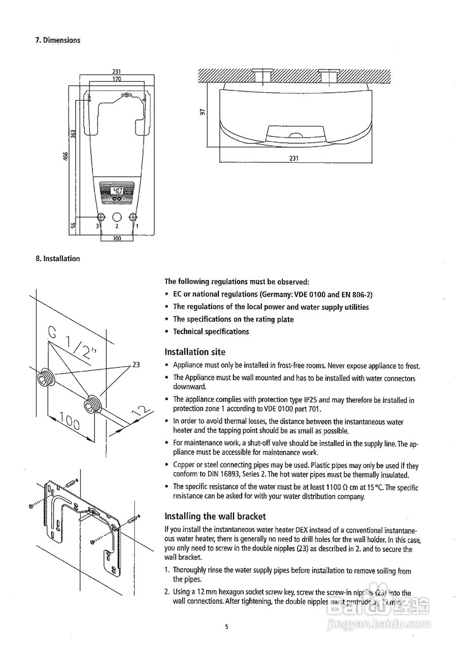
德国宝DEX即热式电热水器使用说明书:[1]
2026-02-15 10:10:09
/>
/>
/>
/>
(共篇)
下一篇:
相关推荐
优劣防冻液对汽车寿命的影响分析
阅读量:88
酒驾怎么处理
阅读量:122
治脚气最有效的方法是什么
阅读量:59
商标丝网印刷技术操作手册
阅读量:191
湿疣手术之后要过多久可以同房?
阅读量:105
猜你喜欢
胸口闷是怎么回事
婚姻介绍所怎么开
宝宝拉稀水怎么办
怎么做系统
皮肤黄怎么变白
鱼干怎么做好吃
永久山地车怎么样
手机的ip地址怎么查
abcd级车怎么区分
三黄鸡怎么做好吃
猜你喜欢
怎么锻炼记忆力
qq被封号怎么办
牛奶面膜怎么做
头痛怎么办快速缓解
壁挂炉怎么取暖使用方法
女人性冷淡怎么办
虱子卵怎么去除
上颚肿痛是怎么回事
尿素氮高是怎么回事
皮肤怎么补水